Masterthesis 2025 | 26

EIN QUANTUM MEER

Der Strudel des Wissens

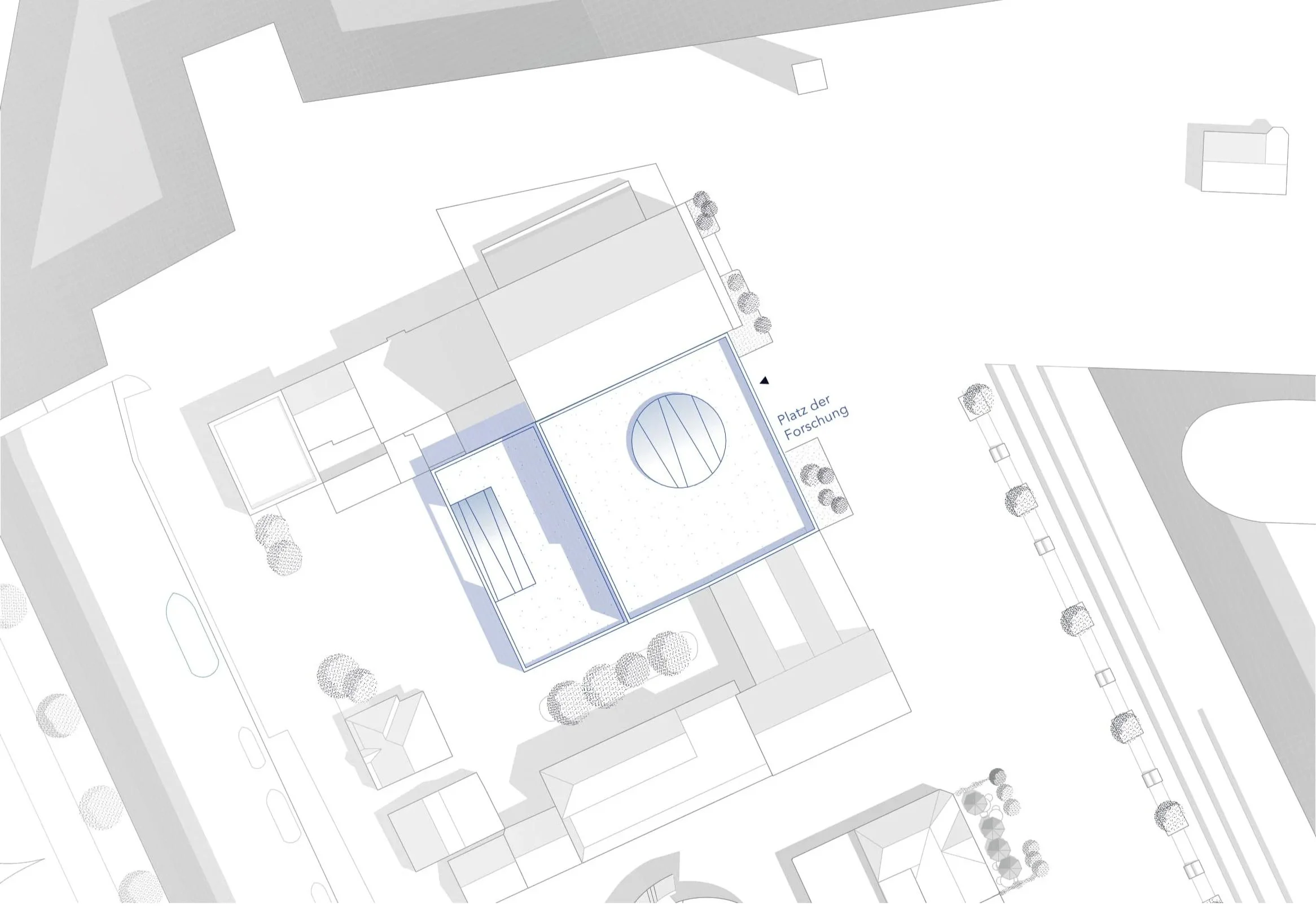
In unmittelbarer Nähe zum Ozeaneum in Stralsund soll ein Meeresforschungsinstitut entstehen. Der Standort ist als zentraler Knotenpunkt für die Forschung an Ost- und Nordsee konzipiert. Neben der wissenschaftlichen Arbeit werden hier Präparate hergestellt, die für die Ausstellung im Ozeaneum vorgesehen sind. Forschung, Präparation und Wissensvermittlung werden damit räumlich und inhaltlich miteinander verknüpft.

Als leitendes Motiv dient die Strömung als Lebensader des Meeres. Dieser Ursprung mariner Prozesse wird architektonisch in Form eines „Strudels des Wissens“ übersetzt. Der Strudel bildet den öffentlichen Raum im Inneren des Gebäudes aus und fungiert als räumliches und soziales Zentrum. Er verbindet Forschungsbereiche, öffentliche Nutzungen und Vermittlungsformate und schafft einen Ort der Begegnung zwischen Wissenschaft und Öffentlichkeit.

WS 2025 | 26
Stralsund

  • Das Gebäude gliedert sich in zwei klar definierte Hauptbereiche: Forschung und Öffentlichkeit. Beide Bereiche sind räumlich und funktional voneinander getrennt, treten jedoch über gezielte Einblicke und Überschneidungen in einen inhaltlichen Dialog. Die Forschungsbereiche orientieren sich zur Stadt hin und sind zugleich präsent am Hafen sichtbar, wodurch die enge Beziehung zwischen wissenschaftlicher Arbeit, maritimem Kontext und urbanem Raum betont wird.

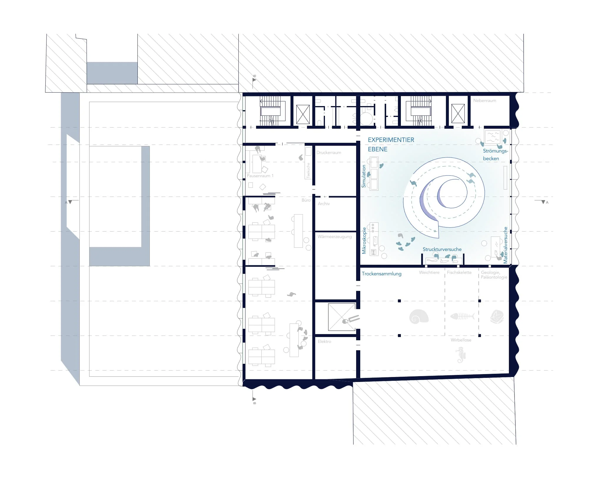
  • Im Erdgeschoss sind die werkstattbezogenen Nutzungen sowie die Tierhaltung verortet. Diese Ebene bildet die funktionale Basis des Forschungsbetriebs. In den Obergeschossen befinden sich die Administration und die Sammlung. Der Zugang zu den Forschungsbereichen ist ausschließlich den Mitarbeitenden vorbehalten. Besucherinnen und Besucher erhalten jedoch kontrollierte und gezielte Einblicke in ausgewählte Teile der Sammlung, wodurch Forschung sichtbar gemacht wird, ohne Arbeitsabläufe zu stören.

    Der öffentliche Teil des Gebäudes wird durch den sogenannten „Strudel des Wissens“ geprägt. Dieser bildet das räumliche Herz des Hauses und schraubt sich als vertikaler Erschließungs- und Aufenthaltsraum in das Gebäudeinnere. Mit zunehmender Höhe öffnet sich der Strudel stärker und erzeugt im obersten Geschoss einen großzügigen Raum des Austauschs und der Begegnung.

  • Der Weg der Besucherinnen und Besucher nach oben folgt einer inhaltlichen Abfolge, die sich an den Ebenen der Forschung orientiert. Den Auftakt bildet das Foyer mit der Experimentierebene. Hier ist eine offene Mitmachwerkstatt angeordnet, in der grundlegende Fragestellungen der Meeresforschung spielerisch und experimentell erfahrbar werden.
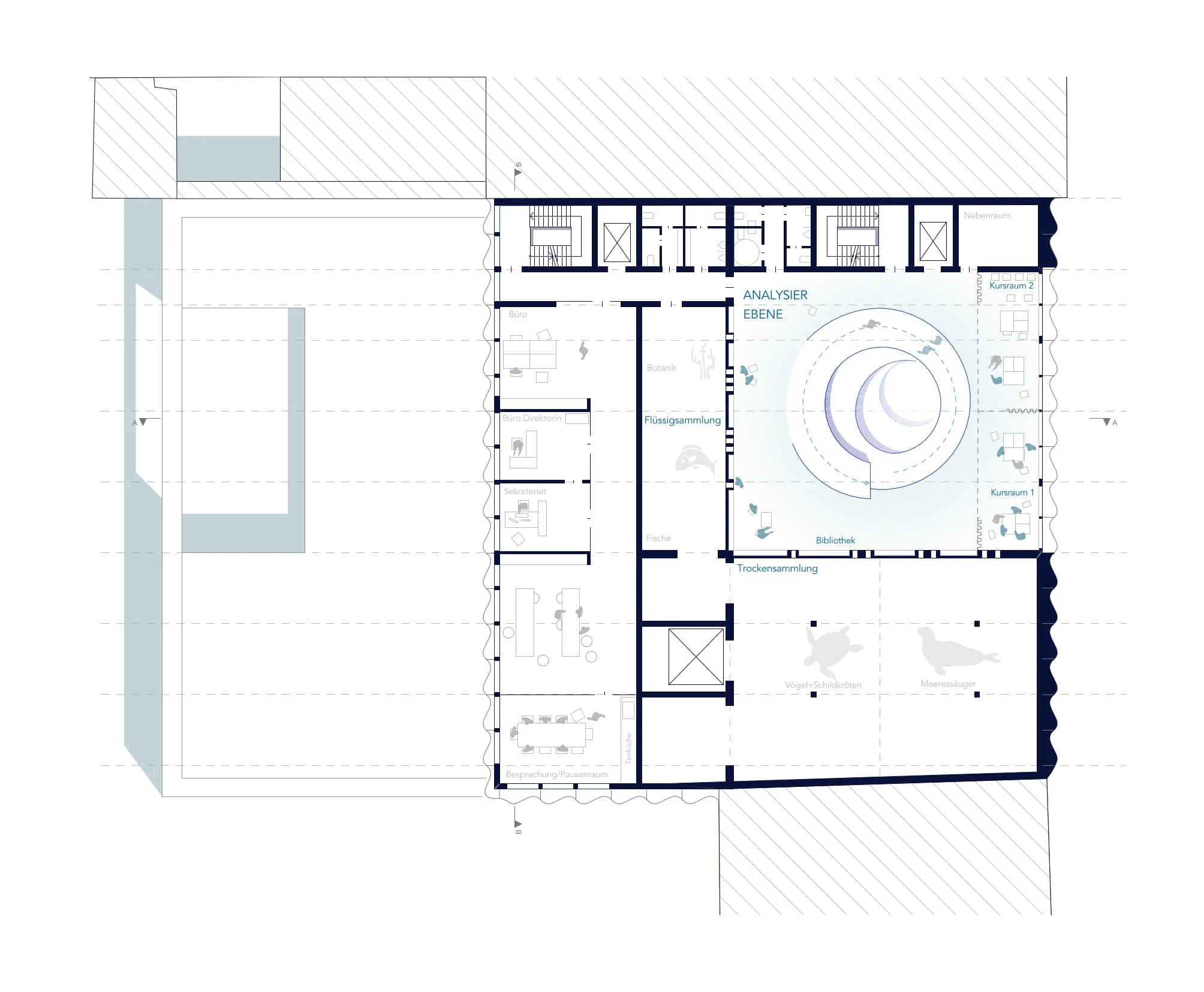
    In der darüberliegenden Ebene werden die zuvor gemachten Erfahrungen vertieft und reflektiert. Zwei multifunktionale Kursräume bieten Raum für Analyse, Diskussion und gemeinsames Arbeiten. Die anschließende Forschungsebene beherbergt die Bibliothek, die als ruhiger Ort des Lesens, Arbeitens und Beobachtens ausgebildet ist und verschiedene Sitz- und Aufenthaltsmöglichkeiten bietet.

    Im vierten Obergeschoss liegt der Schwerpunkt auf Austausch und Diskussion. Neben dem Auditorium sind hier offene Sitzgruppen angeordnet, die informelle Gespräche zwischen Besucherinnen, Besuchern und Forschenden ermöglichen und den Dialog fördern.
    Das oberste Geschoss widmet sich der Auseinandersetzung mit Visionen und Prognosen. Hier öffnet sich der Strudel räumlich und visuell. Großzügige Blickbeziehungen zur Stadt und zum Hafen ermöglichen eine ungestörte Wahrnehmung des Umfelds und unterstreichen den Ausblick in zukünftige Entwicklungen der Meeresforschung.

Ansicht Nord-Ost

Schnitt durch die Baulücke

ERDGESCHOSS

1. OBERGESCHOSS

2. OBERGESCHOSS

3. OBERGESCHOSS

4. OBERGESCHOSS

5. OBERGESCHOSS

© Anja Bähr. Alle Rechte an Bildern, Plänen und Grafiken vorbehalten.